不動産マネジメントから事業、経営のプロデュースまで 株式会社アペック|賃貸物件詳細
HOME
物件情報
賃貸
売買・仲介
不動産管理
プロデュース
起業支援
会社概要
アクセス
リンク
お問い合わせ
賃貸物件
HOME
賃貸物件
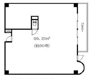
第1山本ビル 301号室
物件名
第1山本ビル 301号室
家賃
16.2万円
間取り
事務所
交通
大阪モノレール 阪大病院前
所在地
茨木市美穂ヶ丘
礼金
2ヶ月
敷金
1ヶ月
共益費
10,800円
駐車場
近隣 12,000円
築年月
H5
面積/㎡
99.2
その他
-
CopyRight © APEC. All Rights Reserved.
▲ ページトップ